登录|注册|
购物车| 装修热线:18955645334
您的位置:中华装修网 >小区楼盘 >紫荆辰光
现代简约 (301人看了此方案) 立即招标
设计思路|平面布置图|设计图
设计思路
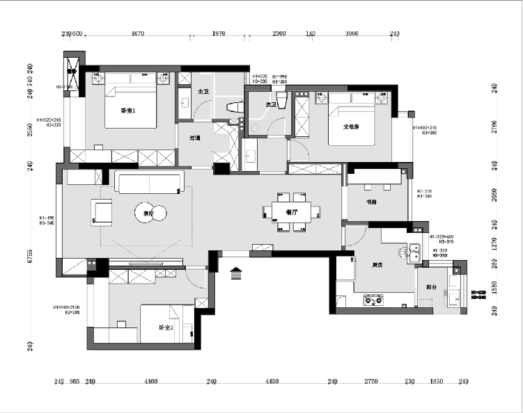
平面布置图
设计图
在线客服
在线咨询
服务时间:
9:00--18:00
官方微信
微信扫一扫
联系电话
18955645334
返回顶部